Progress Report #05 | Q2 2023 - Post Launch


Introduction

• Arrow Monaco has been engaged to review the status and quality of the build of the new build Custom Line 42m hull number 10.

• The outfitting is taking place at the Custom Line/Ferretti facilities in Ancona.

• The following report illustrates the status of the build as of the 12th of June 2023 when the vessel was visited.

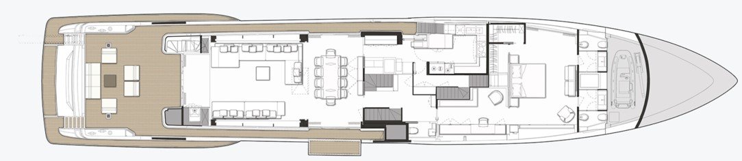
• The finished vessel will have the following arrangement:


01 - Exterior Views


View from aft port quarter

• In general, all external areas are now complete and pending commissioning and inspection,

• The vessel’s underwater hull was reviewed/inspected prior to the vessel exiting the shed, and the day prior to the launch,

• Following our first inspection in the sunlight, a full polish of the top sides was undertaken prior to launching.

• Transom door is now in place,  final alignment is taking place and commissioning is due in the coming weeks,

• Side garage door is now in place and is to be commissioned,

• Rollbar and mast have been installed prior to the launch, all apparatus has been installed and cabled up,

• Handrailing for all decks is in place,

• Teak decks are in place in all areas,

• Windows are now all installed,

• Passarella is installed and working,  to be commissioned,

• Side fashion plates have been installed,  closures for bolting need to be completed,

• Covers/carters for side ladders are still being completed.  The interior carters are missing,


02 - Exterior Decks


Main deck aft cockpit

• Cap rails have now been installed,

• Stainless steel pillars have been installed (yet to be fully connected),

• Teak deck has now been laid (still to be finished off, sanded, and caulking to be cut away,

• STBD technical locker is close to completion,

• Mooring cleats, fairleads, and capstans are complete and are being used for mooring at the berth,

• External lights and speakers are now installed,


Main deck aft cockpit (Part 2)

• Cap rails have now been installed,

• Capstans and their controllers have been installed,

• Teak deck has now been laid,

• Sliding doors are fully installed pending commissioning,

• STBD technical locker hatch is in place,

• Extendible awning is in place,


Main deck side corridors

• Covers/carters for side balconies are being completed,

• External lighting has been installed,

• Bulwarks railing is in place,

• Fashion plates are installed;  the covers for the bolting are to be installed.

• Lockers for fuel, deck, wash, and fire hydrants need to be completed with their hatch covers.


Main deck side corridors (Part 2)

• Outfitting is complete in the fwd technical locker of the STBD corridor,

• Side balconies are being outfitted, including the hydraulic piping and carters,

• Life ring containment carters are being completed.


Forward deck areas and side maneuvering station

• FWD manoeuvring station is in place

• External furniture has now been completely installed,

• Side maneuvering stations are being outfitted,

• External doors are fully installed,               


Forward deck areas and side maneuvering station (Part 2)

• Piloting station is close to complete,

• Teak locker/seating area has been installed,

• Window washing Harken rail has been installed (yet to be tested),

• Stainless steel railing throughout the area is complete,

• FWD maneuvering station is complete.


Upper Deck

• Pillars have now been fully installed,

• Staircase to the Sundeck is not close to complete,

• Bulwark handrailing is now in place for this entire deck,

• External ceiling has now been installed,

• Further outfitting has taken place for the air handler units, and the hatching is being closed off.


Upper Deck (Part 2)

• Pillars have now been installed,

• Staircase from MD and to SD is now close to complete (teak steps and lighting being installed),

• Flagstaff is now in place (with a temporary Italian flag),

• AC lockers are being closed off.              


Sun Deck

• This deck has had the most progress from the last report, with the installation of the hard top and the mast

• Hardtop has been attached to the connection point on the deck,

• Mast has been installed above the hard top,

• All cabling for the mast apparatus is now in place. 


Sun Deck (part 2)

• Attachment of the hard top to the deck


Sun Deck (Part 3)

• Jacuzzi furniture has been installed,

• External bar areas have been installed,

• FWD nav lights post is complete,

• Pop-down /rotating TV mechanism and TV is in place,

• Handrailing is almost complete.

              

    


03 - Interior Areas


Main Deck Lounge

• Sliding doors (aft and sides) are in place,

• All ceilings are in place,

• All side linings are now complete,

• Final floorings are to be installed,

• Furniture is to be installed.


Main Deck Lobby

• Final woodwork for the staircase down to the guest cabins is now in place,

• Ceilings installation is complete,

• Glass panes for the staircase have been installed,

• Final floors to be installed,

• Day head to be completed with accessories.


Master Cabin


Master Cabin (Part 2)

• All furniture is now in place,

• Curtains and blinds are being installed,

• Bed and bed-side tables are in place,

• Ceilings have been completed.


Master Cabin (Part 3) - Bathroom

• Sink top and marble skirting have been installed, washbasins and faucets are missing,

• Toilet bowls and bidets are in place but yet to be fixed and silicone,

• Shower cubicle has some marble slabs missing and yet to be installed,

• Shower head is in place but needs completion,

• Glass enclosures for shower cubicles are in place.


Lower Deck Cabins

• Cabins in lower decks are practically complete with just the final furnishings and floorings to be installed a little prior to the delivery,

• Storm shutters are being tested for adequate fitting,

• Stabilizer compartments are open for final tuning of the units under the guest beds.


Lower Deck Cabins (Part 2) - Bathrooms

• Marble has now been installed (still to be fully completed),

• Washbasins and faucetry are being installed,

• Toilet units, towel racks, and bidets are now in place,

• Mirrors are being installed.


Galley and Pantry

• There has been significant progress in the outfitting of the galley and pantry,

• Joinery is now all in place,

• Custom fridges have been installed,

• Sinks and faucetry have been installed,

• Oven and other apparatus have all been installed but are yet to be commissioned.


Galley and Pantry (Part 2)

• Dumb waiter has been installed and is pending commissioning,

• Custom fridges have been installed in the galley,

• Dishwasher in the pantry is in place,

• Sinks and faucetry in the galley,

• 90cm oven has been installed in the galley.


Bridge Areas

• Furniture is now in place on the fwd console,

• The radio station is in place and complete with all apparatus,


Bridge Areas (Part 2)

• Power has been provided to all apparatus,

• Switchboards are complete and pending final tuning,

• Radio station has all apparatus installed,

• Console and monitoring system are functional and pending commissioning,

• Several apparatus are missing in their housings.


Captain’s Cabin

• Bed has been installed,

• TV housing and the TV itself is now installed,

• Desk and desk accessories are in place,

• Safe has been installed,

• Bathroom has the shower cubicle floors missing and the sink and faucetry are yet to be installed.


Upper Deck Aft Lounge

• Sliding doors (aft and sides) are in place,

• All ceilings are in place,

• All side linings are now complete,

• Final floorings are to be installed,

• Furniture is to be installed.


Upper Deck Aft Lounge (Part 2)

• Sliding curtains to be completed,

• Ceilings to be closed off (upon completion of works)

• Side switches to be completed and closed off.

• Staircase glass walls are now in place (for the staircase to lower decks.


Upper Deck Pantry and Technical Space

• Dumb waiter is in place,

• Sink has been positioned and the faucet for the pantry area is installed,

• Wide cellar has been installed and so has the pantry fridge,

• Day head is pending installation of the sink and faucet,

• AV locker appears all cabled up and to be closed with final doors.


Crew Areas

• Furniture has been installed,

• Washing machines and main apparatus have been installed.


04 - TECHNICAL SPACES


Engine Room

• Engine room has been now prepared for all the commissioning work to be undertaken in the following days/weeks.


Engine Room (Part 2)


Upper Deck Aft Lounge

•Works have now moved ahead following the embarkation of the engines and the closure of the hatches on all three decks (main, upper and sun deck),

•Ceilings are mostly in place together with side walls,

•Side and aft sliding doors are now in place,

•AC units have now been installed and most of the ducting for those too,

•Floors have now been closed off, and several finished wood components are now in place.


Engine Control Room

• The area has been cleaned up with all wiring now complete and all panels closed.

• There is much work for the final tuning of the switchboards taking place.


Side Garage

• Much outfitting has taken place in this area,

• The door has been installed,

• The sliding hatch into the engine control room is now in place,

• Fuel pistol has been installed on the FWD bulkhead.

• Winch for tender deployment/launching is now installed.


05 - LAUNCHING DATE 30th MAY


CONCLUSIONS

• Progress of the vessel is being monitored on a fortnight basis,

• The yacht is now out of the shed and has been launched on the 30th of May 2023,

• Outfitting is proceeding at the berth in the Custom Line Marina in Ancona,

• Commissioning and delivery is due for the forthcoming weeks,

• Final delivery is still expected as per the contract in October,

• The antifouling was checked both in the shed and a day prior to launching, and claims were rectified prior to launching,

• The topsides were also checked for defects and certain areas were re-polished upon our request and identification of defects,

• At the moment, we cannot foresee any delay in the delivery of the yacht.

• We continue to update the snag list with new items as these are discovered, and closure of items from the yard on our regular visits.


Download Report 005 - Q2 2023 (PDF)
Return to Report Menu